お庭づくりで一番気になる「費用」について、実際の施工事例をもとに分かりやすくご紹介します。お庭の広さや工事内容により料金は変動しますが、事前にしっかりとお見積もりいたします。
いろは苑における料金の考え方
料金設定の基準
いろは苑では「材料費」「施工費」「諸経費」を明確に分けた透明性の高い料金設定を行っています。お庭の面積、使用する材料、工事の複雑さに応じて適正価格をご提案いたします。
料金に影響する主な要因
立地条件
- 車両の進入しやすさ
- 材料の搬入・搬出の難易度
- 近隣への配慮が必要な場合
土壌・地形条件
- 既存の土壌状態
- 高低差や傾斜の有無
- 地盤の状況
工事内容
- 使用する植物や材料のグレード
- デザインの複雑さ
- 既存構造物の撤去作業の有無
お支払いについて
お支払い方法
現金、銀行振込に対応
お支払いスケジュール
- 着手金:契約時に工事費の30%
- 中間金:工事進行に応じて調整
- 完成金:工事完了・検査後
施工事例別料金
実際に施工させていただいた例を基に、おおよそのお値段を表記させていただきました。
立地条件や詳細仕様により変動いたしますので、おおよその目安としてお考えください。
小規模庭園(~30㎡)
ケース1:和風庭園リフォーム
面積:約18㎡ 総額:550,000円(税込)
工事内容
- 客土工事:2㎡
- 景石据え付け:5~6石
- 既存植物移植:5本
- 植栽工事:高木3本、中木3本、低木・下草
特徴 コンパクトなスペースを活かした和風庭園。景石を効果的に配置し、季節感のある植栽で上品な仕上がりに。
中規模庭園(31-60㎡)
ケース2:ファミリー向けガーデン
面積:約44㎡ 総額:1,100,000円(税込)
工事内容
- 平板据え付け:5㎡
- ゴロタ石敷き:1㎡
- 砂利敷き:12㎡
- 植栽工事:高木2本、中木6本、生垣5m、低木・下草
- 芝生張り:14㎡
特徴 お子様も安心して遊べる芝生スペースと、メンテナンスしやすい石敷きエリアを組み合わせた実用的な庭園。
ケース3:洋風エクステリア重視
面積:約46㎡ 総額:2,680,000円(税込)
工事内容
- ウッドフェンス:6m+12.7m
- レンガ積み花壇:6㎡
- バードバス据え付け:1式
- 客土工事:4㎡
- 砂利敷き:23㎡
- ゴロタ石敷き:7㎡
- 植栽工事:高木5本、中木8本、低木・下草
特徴 ウッドフェンスとレンガ花壇で洋風の雰囲気を演出。バードバスがアクセントとなる上質な庭園。
大規模庭園(61㎡~)
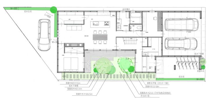
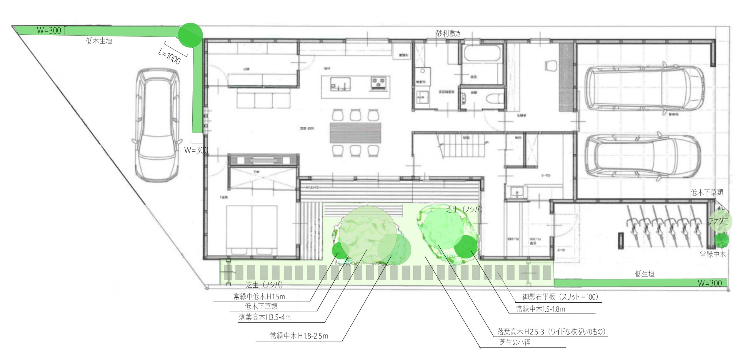
ケース4:駐車場一体型ガーデン
面積:約65㎡ 総額:2,100,000円(税込)
工事内容
- 駐車場:23㎡
- ウッドデッキ:6㎡
- 石積み:5㎡
- 沓脱・園路:1式
- 砂利敷き:16㎡
- ゴロタ石敷き:12㎡
- 植栽工事:高木2本、中木4本、低木・下草
特徴 駐車場と庭園が調和した機能性とデザイン性を両立させた設計。ウッドデッキでくつろぎ空間も確保。
ケース5:本格リフォーム
面積:約115㎡ 総額:3,300,000円(税込)
工事内容
- 駐車場:28㎡+25㎡(2台分)
- ウッドデッキ:7㎡
- ウッドフェンス:2.4m+4.3m
- レンガ園路:4㎡
- 砂利敷き:31㎡
- 残土出し・客土:3㎡
- 植栽工事:高木5本、中木8本、低木・下草
特徴 広いスペースを最大限活用した総合的なエクステリアリフォーム。2台分の駐車場と豊富な植栽で快適な住環境を実現。
よくある質問(FAQ)
見積もりについて
Q. 見積もりは有料ですか?
A. はい、いろは苑では現地調査から詳細見積もりまで有料をさせていただいております。詳細はプラン見積もり料金についてをご覧ください。
Q. 見積もりから施工までどのくらいかかりますか?
A. 現地調査後、1週間程度で詳細見積もりをご提示します。ご契約後、工事開始まで通常2-3週間お時間をいただいております。
Q. 他社と比較検討したいのですが?
A. もちろん大丈夫です。納得いくまでご検討ください。見積もり後の営業電話等は一切いたしません。
料金について
Q. 追加費用が発生することはありますか?
A. 工事開始後に予期せぬ地盤状況や配管の発見があった場合のみ、事前にご相談の上で対応いたします。お客様の承諾なく追加工事は行いません。
Q. 分割払いは可能ですか?
A. 工事の規模に応じて着手金・中間金・完成金の分割払いに対応しています。詳細はご相談時にお打ち合わせいたします。
Q. 表示価格以外にかかる費用はありますか?
A. 表示価格は税込み総額です。ただし、特殊な立地条件(クレーン使用等)がある場合は別途ご相談となります。





